Wettbewerb, 2. Preis
Umstrukturierung und Erweiterung des Rathaus zu einem Rat- und Bürgerhaus
Holzwickede

Auszug Preisgerichtsbeurteilung
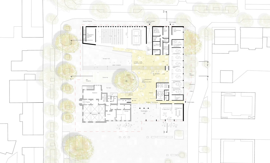
Dem Entwurfsverfasser ist es sehr gelungen eine ausgewogene, harmonische und anregende Kombination aus Alt und Neu zu schaffen. Der denkmalgeschützte Altbau behält seine Dominanz und wurde der gebührenden Sorgfalt in das neue Ensemble eingebunden. Weiterhin ist dem Entwurfsverfasser gelungen, ein spannendes städtebauliches Ensemble zu bilden der einerseits eine Piazetta zur Straße „Allee“ Verweilqualitäten schafft und zum andern eine Durchwegung und somit Verbindung zum neu gestalteten Marktplatz schafft. Hierdurch entsteht eine städtebauliche Aufwertung der Straße „Allee“ für zukünftige Entwicklungen. Ähnlich verhält es sich mit der Orientierung des Neubaus zur Straße am Markt wo der Neubau sich gut einfügt.
Der Eingangsbereich am Marktplatz ist offen und einladend gestaltet und wird durch die Anordnung des Cafés und den sich daran fortsetzenden Bürgerraum belebt. Hier wird die Forderung zur räumlichen Nähe von Café und Ratskeller erfüllt. Die Führung ins räumliche Innere des Foyers als „Raumkontinuum“ überzeugt mit einer Leichtigkeit und Orientierung zum Außenraum der „Piazetta“. Die grundsätzliche typologische Entwicklung von einem „parlamentarischen“ Bereich des Multifunktionssaals und dem funktionalen Trakts inkl. Verbindung wird besonders gelobt. Die Barrierefreiheit ist ebenfalls gut gelöst. Begrüßt wird, dass es dem Entwurfsverfasser gelungen ist seinen Entwurf unterhalb der vorgegeneben Kostengrenze zu halten.






2.Preis, 2016
18.071 cbm
H III S, harder stumpfl schramm
Transsolar KlimaEngineering
Gemeinde Holzwickede