Wettbewerb, Anerkennung
Nachhaltige Sanierung Landtagsgebäude Rheinland-Pfalz
Mainz

Auszug Preisgerichtsbeurteilung

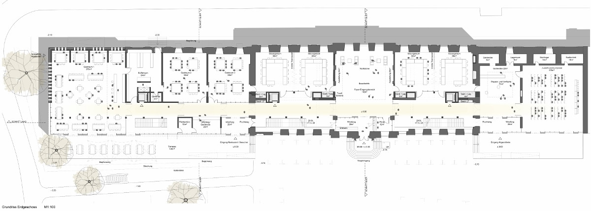
Der klare städtebauliche Ansatz mit dem überhöhten Gebäudeabschluss zur großen Bleiche wird durch das Preisgericht grundsätzlich gewürdigt. Der geforderte gemeinsame, inklusive Haupteingang für alle Besucher wird dadurch nicht erreicht.

In der inneren Gebäudeorganisation überzeugt die klare Gliederung der Grundrisse in Verbindung mit einer guten Orientierung und Wegeführung. Der Plenarsaal ist mit seiner durchgängigen Barrierefreiheit positiv hervorzuheben.

Die Drehung des Plenarsaals um 90° kann letztlich nicht vollständig überzeugen. Die scheinbar symmetrischen Gestaltung der Innenwände irritiert, da zwischen den Türen zur Lobby auf der einen Seite und gegliederten Wandflächen auf der anderen Seite nicht unterschieden wird.

Im Bereich der Empore erreicht der Verfasser mit der Drehung eine optimale Fluchtweg- und Erschließungssituation. Die einläufigen Treppenräume erfüllen die Brandschutzanforderungen, sind jedoch aufgrund ihrer Dimensionierung und der Nutzungseinschränkungen problematisch. Obwohl einige Aspekte nicht überzeugend gelöst werden, wird der Beitrag mit seinem sehr eigenständigen und qualitätsvollen Erschließungskonzept durch das Preisgericht positiv gewürdigt.

Wettbewerb

Anerkennung, 2014

Bruttorauminhalt

39.041 cbm

Architekten

H III S, harder stumpfl schramm

Technische Gebäudeausrüstung

Schreiber Ingenieure

Tragwerksplanung

Ing.-G. Dietrich

Bauphysikplanung

Ing.-G. GN Bauphysik

Brandschutzplanung

Sachverst.-G. Integris

Lichtplanung

Institut f. Tageslicht

Auftraggeber

Ministerium der Finanzen Rheinland-Pfalz