Wettbewerb, Anerkennung
Amtsgericht
Bitburg

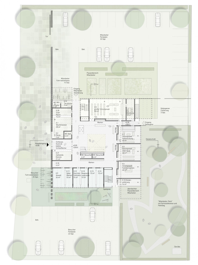
Das großzügige Grundstück erlaubt die Planung eines in sich ruhenden Solitär-Gebäudes, dessen Mittelpunkt die mehrgeschossige Halle mit den Erschließungen, Kommunikations- und Wartebereichen bildet. Die Verankerung mit dem städtebaulichen Kontext erfolgt über die Außenanlagen. Das Grundstück wird in Parzellen geteilt, die in ihrer Größe den Bezug zur Nachbarschaft suchen.

Lageplan

Über den großzügigen Vorplatz und die Zugangskontrolle betritt der Besucher die zentrale, tagesbelichtete Halle mit den Wartebereichen für die angrenzenden Gerichtssäle.
Der öffentliche Bereich und der interne Bereich sind geschossweise getrennt.

Erdgeschossgrundriss

1. Obergeschoss

Der Neubau ist als Hybridkonstruktion mit einer Stahlbetonskelettkonstruktion als Primärkonstruktion und einer vorgefertigten Fassade als Holzrahmenbau geplant.

Die Fassade ist entsprechend der Grundrisse einheitlich gerastert, damit mit den nicht tragenden Zwischenwänden eine hohe Flexibilität gewährleistet ist. In den Fassaden wechseln sich vertikale Bänder mit Holz-Alufenstern und geschlossenen Holztafelelementen ab.

Wartebereiche

Detailschnitt

Wettbewerb

Anerkennung, 2020

Bruttorauminhalt

11.840 cbm

Architekten

H III S, harder stumpfl schramm

Auftraggeber

Land Rheinland-Pfalz