FFH
Feuerwehrgerätehaus Haunstetten

Das Baugrundstück befindet sich im Augsburger Stadtteil Haunstetten an der Kreuzung Isarstraße / Krankenhausstraße, eingerahmt von Wohnbebauung und einem Industrieareal im Süden.

An der südwestlich gelegenen Straßenkreuzung ist markant der Haupteingang mit Übungswand und Übungsfläche platziert. Zum Schutz der Nachbarn wird die Fahrzeughalle mit Alarmausfahrt, kreuzungsfrei zu den weiteren Fahrzeugbewegungen, konsequent nach Westen zum Mittelbach mit Grünzug angeordnet.

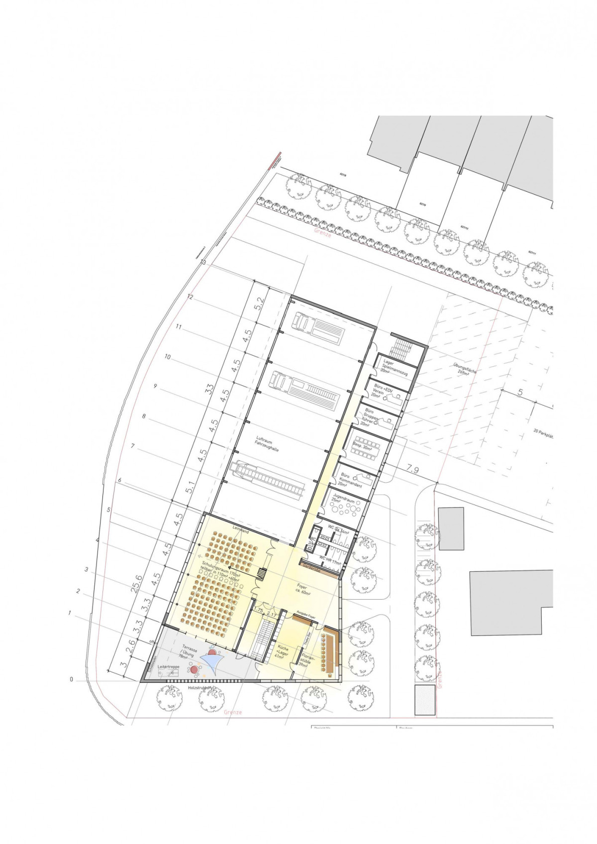
Grundriss 1. Erdgeschoss

Die übrigen erdgeschossigen Bereiche wie Umkleiden, Sanitärbereiche, Werkstattflächen, sowie Lager- und Funktionsflächen sind in einem nordöstlich verlaufenden Längsbau untergebracht.
Im Obergeschoß sind der Schulungsraum, das Florianstüble, die Küche, der Jugendraum, die Verwaltung und Besprechungsräume angeordnet.
In Kombination mit dem großzügigen Schulungsraum und der Übungswand im Eingangsbereich, befindet sich im 1. Obergeschoss eine Terrasse, welche für Übungszwecke und als Erholungsfläche dient.

Grundriss 1. Obergeschoss

Die dienenden Räume im Erdgeschoss sollen in Massivbauweise umgesetzt werden. Die Konstruktion der Fahrzeughalle, das Obergeschoss und sämtliche Dächer werden in Holzbauweise ausgeführt.

Ansicht Westen

Sämtliche Dächer werden begrünt und sind mit hochwirksamen Photovoltaikflächen ausgestattet.

Projekt

Neubau Feuerwehrgerätehaus Haunstetten

Fertigstellung

2027

Bauvolumen

8.540 cbm

Architekten

H III S, harder stumpfl schramm

Projektarchitekten

Antonio Arana, Miguel Lopez

Freiraumplanung

Kots Landschaftsarchitektur

Leistungsphasen 1 bis 9

H III S, harder stumpfl schramm

Leistungsphasen 6 bis 9

H III S, harder stumpfl schramm in Zusammenarbeit mit Leitwerk AG Augsburg

Bauherr

Stadt Augsburg

Fotografie

H III S, harder stumpfl schramm