VIS
Erweiterung des Visualisierungsinstituts (VISUS), Stuttgart

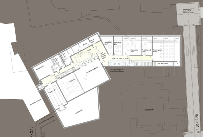
Das denkmalgeschützte Hysolar-Gebäude, das unser Büro bereits 2009 saniert (in Kooperation mit Behnisch Architekten) und erweitert hat, wird um einen weiteren Baustein ergänzt. Der Entwurf für das Visualisierungsinstitut (VISUS) an der Universität Stuttgart führt das bestehende Konzept konsequent fort und verankert die neuen Räume erneut im Terrain.

Die Labore sind im Untergeschoss angeordnet, während die Büros im Erdgeschoss liegen und durch eine großzügige Glasfassade mit Tageslicht versorgt werden. So entstehen Räume, die sich größtenteils verborgen in die Landschaft einfügen und gleichzeitig eine hohe Aufenthaltsqualität bieten.
Eine präzise gesetzte Glaskante bringt zusätzlich Licht in die Tiefe und macht den Eingriff nach außen ablesbar.

Projekt

VISUS, Erweiterung Visualisierungsinstitut, Stuttgart

Fertigstellung

2029

Bauvolumen

2.900 m³

Architekten

H III S, harder stumpfl schramm

Leistungsphasen

1 – 9

Bauherr

Land Baden-Württemberg, Vermögen und Bau
vertr. durch das Universitätsbauamt Stuttgart und Hohenheim